
The last Habersham County Commission meeting of 2020 approved steps in two major Habersham developments, a modification for a townhome development and a tax incentives for a hotel development.
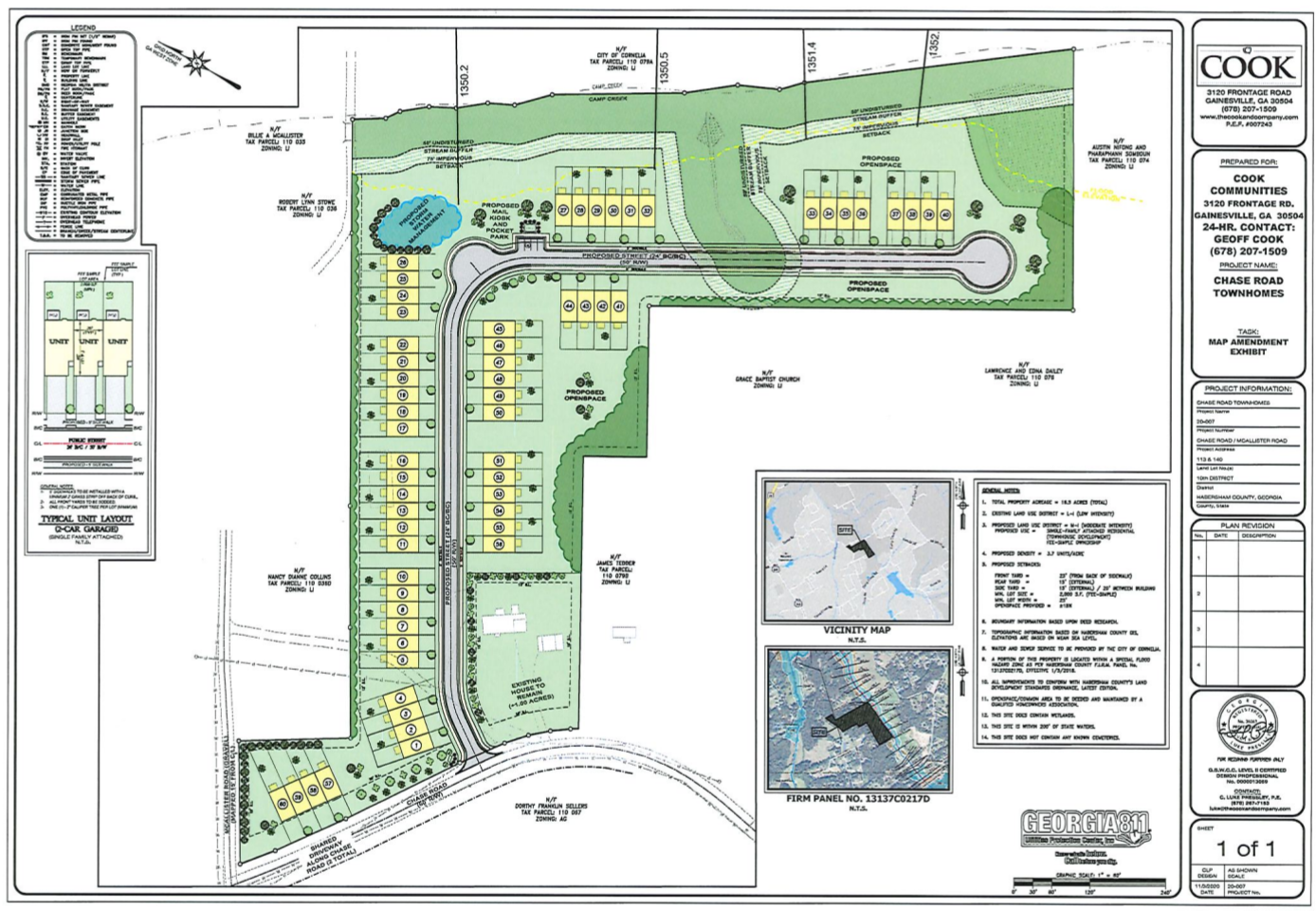
The Habersham County Commission accepted a modification to a low impact development by Cook Communities, LLC. to become moderate impact development. This development now includes 60 three-bedroom, two-bathroom townhomes and three single-family detached homes on the 16.5-acre parcel at 1880 Chase Road in Cornelia. The development is expected to have a minimal impact on the traffic on Chase Road according to a traffic impact study conducted by Southeastern Engineering.

“This type of housing is severely needed in our community,” Chairman Stacy Hall said. “It seems like a good use of that land, there’s city water and city sewer already on that property, it’s been to the planning commission, they approved it with recommendations, the recommendations seem reasonable. I can’t determine any logical reason not to approve it.”
The vote passed four to one, with commissioner Jimmy Tench in opposition.
The commission passed property tax incentives for “Project Stay,” which was created to build a hotel in Habersham to bring economic development to the county. The developer has plans for an initial investment of $8 million to build a four-story, 80-room “higher end” hotel in Cornelia.
“Project Stay is expected to spur the growth of Cornelia’s retail district and it is hoped to lead to more economic development activity increasing the County’s tax base while decreasing the burden on residential property owners,” the Habersham Development Authority wrote in their executive summary.
The hotel is expected to create a facility for athletes and families traveling to Piedmont University for events, as well as attract more business and tourism in Habersham County.
“[When] you start getting two or three hotels together, you start getting more restaurants and that gives people more places to eat,” Commissioner Tim Stamey said. “That creates a competitive environment. More retail, more sales tax, more SPLOST.”
The property tax incentives will decrease over time, the property owner paying 2.5 percent of property taxes in the first 5 years of ownership, 10 percent in year 6, 15 percent in year 7, 20 percent in year 8, and then increasing another 10 percent each year between the 9th to 15th year. By the 16th year of ownership, the owner will be paying 100 percent of property taxes.
The land in consideration generates $2,700 in property taxes annually as is. Under Project Stay, for the first five years, the land will generate $2,800 in property taxes annually.
One citizen expressed concern that the public had not been made aware of this project until very recently. A representative claims that this project has been in the works for the past three to four years, and had made it to the planning commission within the past 120 days. The council voted to approve the tax incentives in a four to one vote, Tench in opposition.
In other news, the Habersham County Commission unanimously passed the consulting contract for phases two and three of the emergency radio system project, purchase of three different pickup trucks for the landfill, fire department, and planning and development department, and the purchase of three extrication “combi-tools” for Habersham County Emergency Services for a total of $430,285. All of these purchases are covered either by SPLOST funds, landfill funds, or capital improvement plan (CIP) funds.
The commission also voted to table all appointments in a three to two vote with commissioner Natalie Crawford and Hall in opposition.
The meeting can be viewed in full here.
This article has been updated to change the term “tax exemption” to “tax incentive” to better reflect the vote that was taken.





